OVERVIEW

ENERGY EFFICIENCY

OTHER SUSTAINABILITY FEATURES & MEASURES

DRAWINGS

MORE CASE STUDIES

ABOUT THE 2030 CHALLENGE

 
   
 

Building Type:
Residential / Condominium

Owner:
Ecocité Developments

Location:
Verdun Borough

Montreal, Quebec

Budget: $1,200,000

Completion: 2009

PROJECT TEAM

Architect:

Studio MMA, Atelier d’architecture

Builder:

Constructions Sodero inc.

Developer:

Ecocité Developments

Mechanical/Electrical Engineer:

Pageau Morel

Energy Simulation:

Pageau Morel

Prof. Michel Bernier, P.Eng. (École Polytechnique de Montréal)

Structural Engineer:

Calculatec inc.

Abondance Montréal – Le Soleil

Studio MMA, Atelier d’architecture

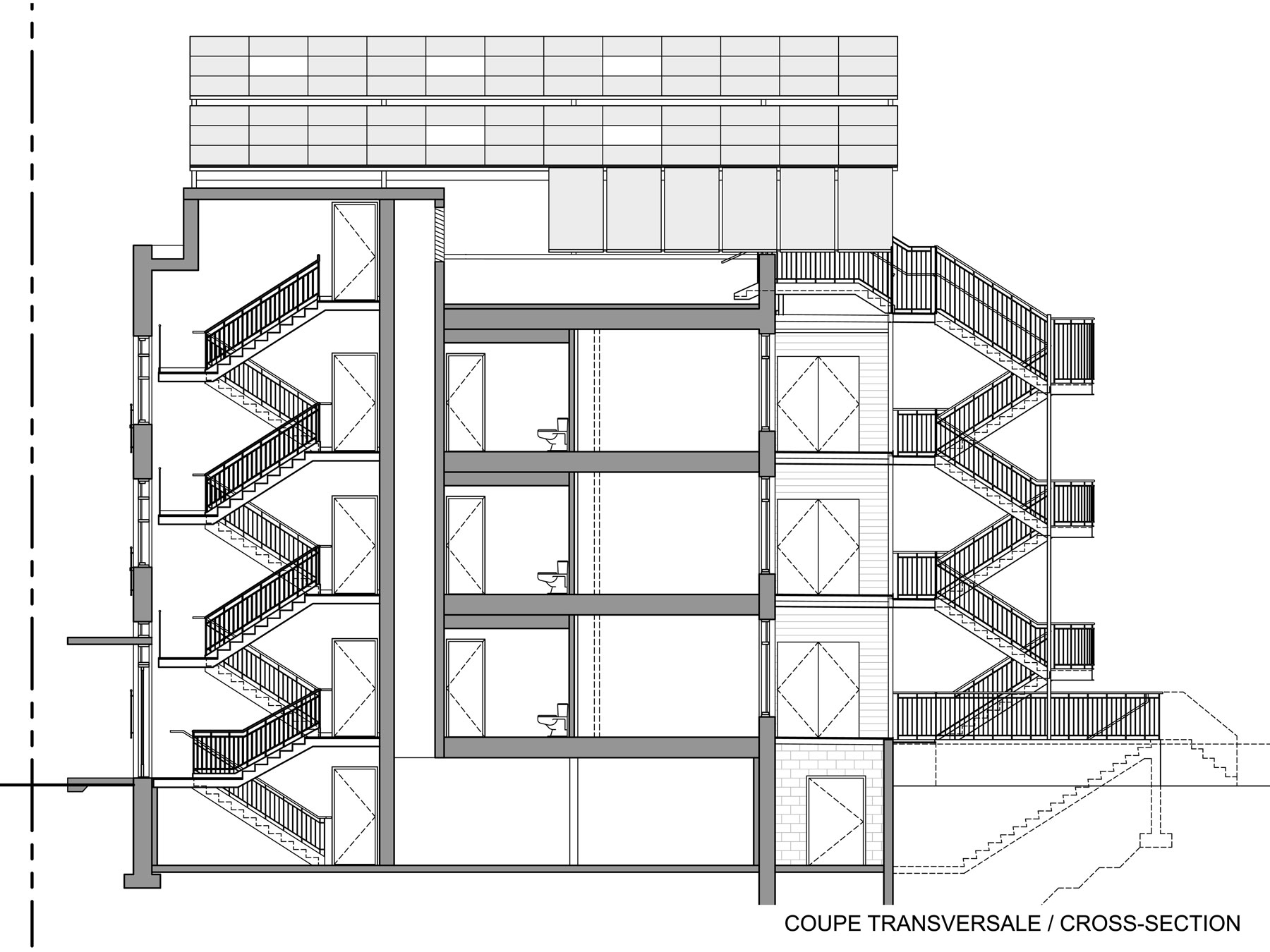
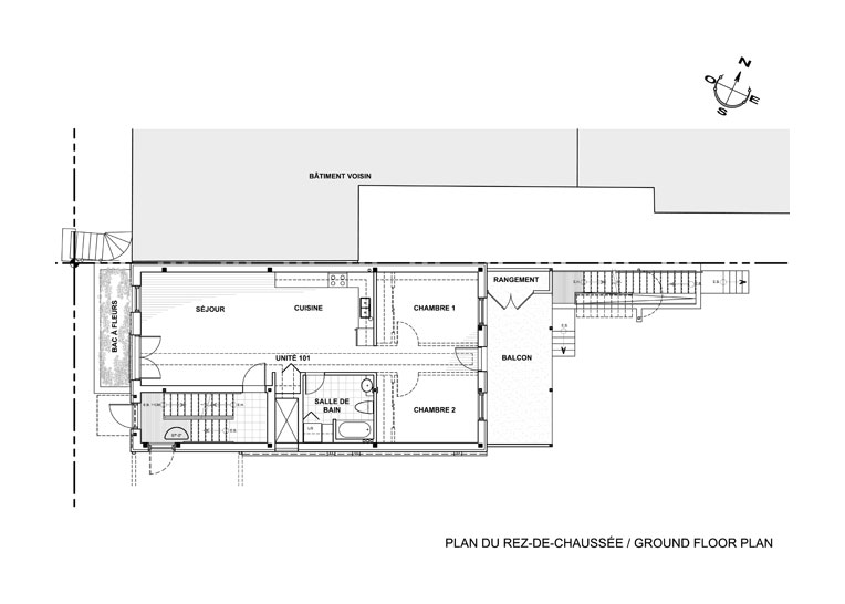
DRAWINGS


Site Integration



Floor Plans & Section Drawings



Energy System Strategies