OVERVIEW

ENERGY EFFICIENCY

OTHER SUSTAINABILITY FEATURES & MEASURES

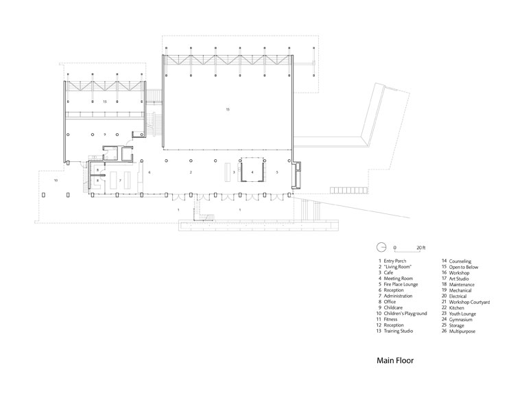
DRAWINGS

MORE CASE STUDIES

ABOUT THE 2030 CHALLENGE

 
   
 

Building Type:
Community Recreation Centre

Owner:
District Of West Vancouver

Location:
West Vancouver,
British Columbia

Budget: $4,650,000
24 000 sq ft (2230 m2)

Completion: March 2003

PROJECT TEAM

Architect:

Patkau Architects

Landscape Architect:

Vaughan Landscape Planning & Design

Structural Engineer:

Fast & Epp Structural Engineers

Mechanical/Electrical Engineer:

Earth Tech Canada Inc

Civil Engineer:

Webster Engineering

Code Consultant:

Gage-Babcock & Associates

Specifications Consultant:

Susan Morris Specifications

Audiovisual Consultant:

Mc Squared System Design Group

Signage Consultant:

Gallop/Varley

Project Manager:

Maurice J. Ouellette

Consulting Contractor:

Country West Construction

Gleneagles Community Centre

Patkau Architects

DRAWINGS


Site Integration



Floor Plans & Section Drawings



Energy System Strategies