OVERVIEW

ENERGY EFFICIENCY

OTHER SUSTAINABILITY FEATURES & MEASURES

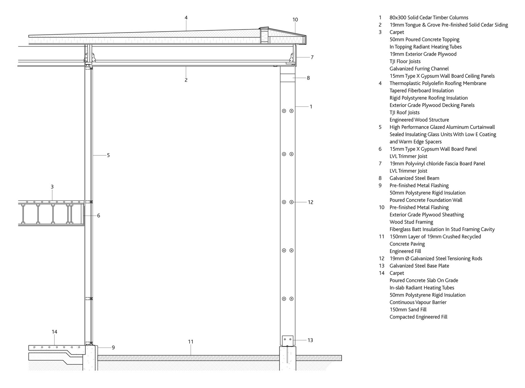
DRAWINGS

MORE CASE STUDIES

ABOUT THE 2030 CHALLENGE

 
   
 

Building Type:
Office and Workshop

Owner:
Toronto and Region Conservation Authority

Location:
Vaughan, Ontario

Budget: $2,800,000

Completion: May 2007

PROJECT TEAM

Architect:

Montgomery Sisam

Santiago Kunzle,
Principal-in-Charge

Geordon Green, MRAIC, Project Manager and Architect

Leslie Parker

Evelyn Casquenette, diagrams

Structural:

Read Jones Christoffersen

Mechanical and Electrical:

Enermodal Engineering

Contractor:

Percon Construction Inc.

Landscape:

Toronto and Region Conservation Authority

Ron Koudys Landscape Architect

Costing:

CM2R

LEED/ CBIP Consultant:

Enermodal Engineering

Site Services:

EMC Group

Specification Consultant:

archiTEXT Consulting

Restoration Services Centre –
Toronto and Region Conservation Authority

Montgomery Sisam

DRAWINGS


Site Integration



Floor Plans & Section Drawings



Energy System Strategies