OVERVIEW

ENERGY EFFICIENCY

OTHER SUSTAINABILITY FEATURES & MEASURES

DRAWINGS

MORE CASE STUDIES

ABOUT THE 2030 CHALLENGE

 
   
 

Building Type:
Education and Research

Owner:
University of Calgary

Location:
Calgary, Alberta

Budget: $23,000,000

Completion: August 2007

PROJECT TEAM

Architect:

Kasian Architecture

Structural Engineer:

Read Jones Christoffersen

Mechanical Engineer:

Wiebe Forest Engineering

Electrical Engineer:

Wiebe Forest Engineering

Energy Consultant:

University of Calgary,
Prof. J. Love

Landscape:

Scatliff Miller Murray Landscape Architects

Contractor:

Ellis Don Construction

Child Development Centre

Kasian Architecture

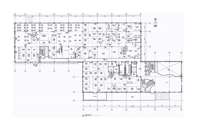
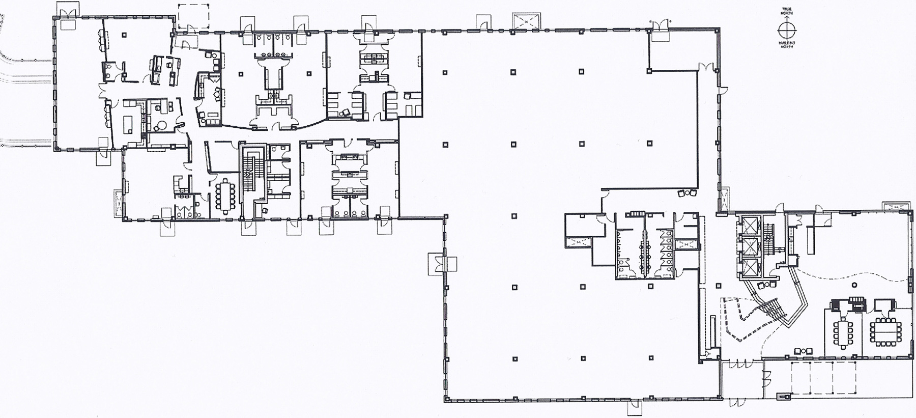
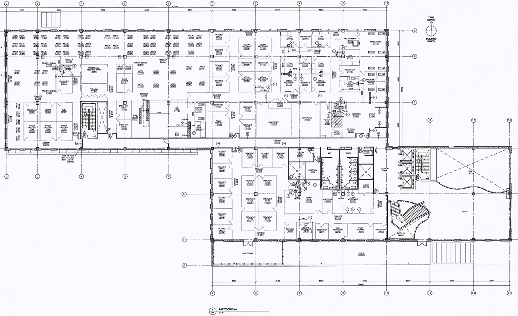
DRAWINGS


Site Integration



Floor Plans & Section Drawings