OVERVIEW

ENERGY EFFICIENCY

OTHER SUSTAINABILITY FEATURES & MEASURES

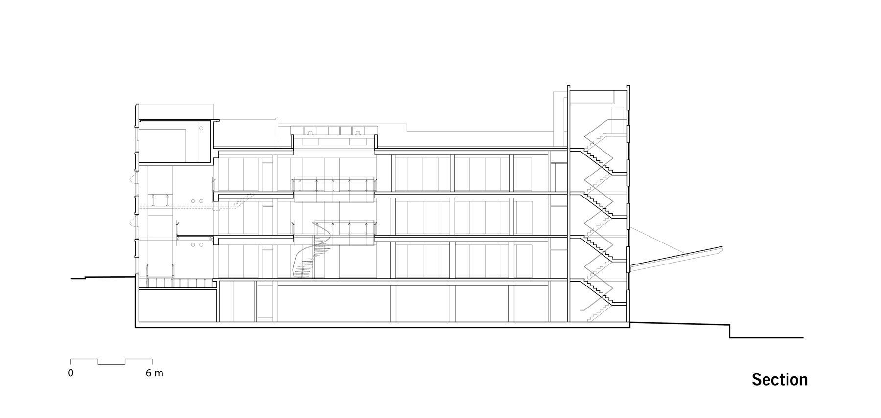
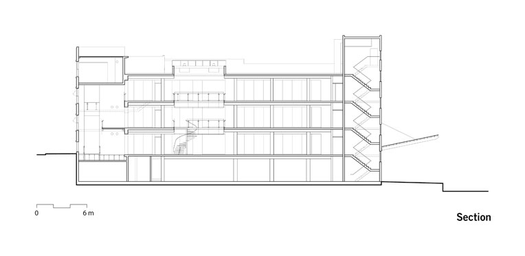
DRAWINGS

MORE CASE STUDIES

ABOUT THE 2030 CHALLENGE

 
   
 

Building Type:
Warehouse converted to architect’s office

Owner:
Busby Perkins+Will

Location:
1220 Homer Street, Vancouver, BC

Budget: $1,100,000

Completion:
Original – 1946
Rehabilitation – 2000

PROJECT TEAM

Architect:

Busby Perkins+Will
P. Busby, D. Dove, S. Gushe, S. Ockwell

Designlines Ltd.
S. Schou

Structural Engineer:

Glotman Simpson

Skylight:

Fast & Epp

Electrical Engineer:

Flagel Lewandowski
(now Acumen Engineering)

Mechanical Engineer:

Keen Engineering

1220 Homer Street

Busby Perkins+Will / Designlines Ltd.

DRAWINGS


Site Integration



Floor Plans & Section Drawings



Energy System Strategies