OVERVIEW

ENERGY EFFICIENCY

OTHER SUSTAINABILITY FEATURES & MEASURES

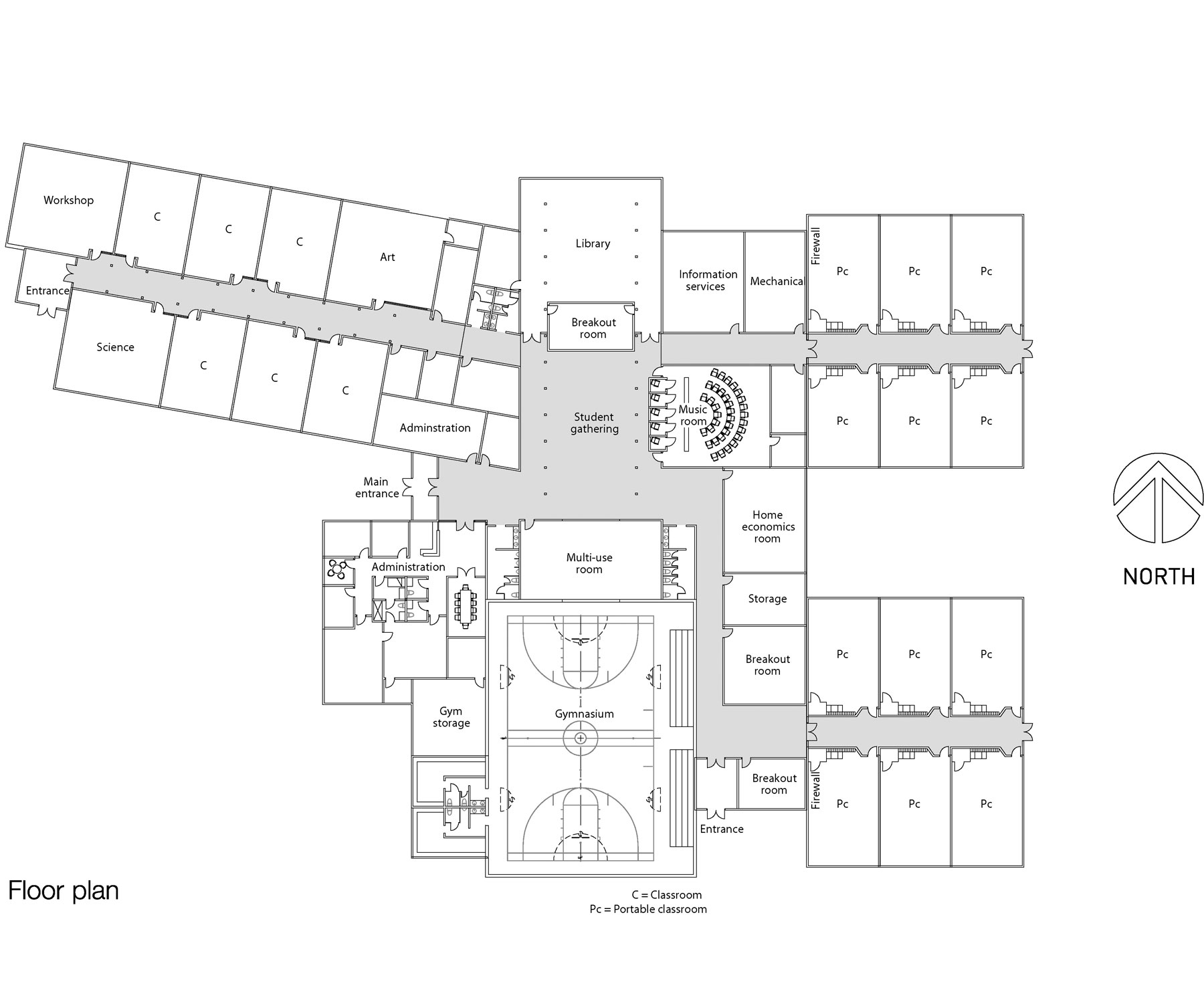
DRAWINGS

MORE CASE STUDIES

ABOUT THE 2030 CHALLENGE

 
   
 

Building Type:
Middle School 5 - 8

Owner:
Canadian Rockies Public Schools

Location:
Canmore, Alberta

Budget: $11,770,000

Completion: October 2008

PROJECT TEAM

Architect:

GEC Architecture

Structural Engineer:

Read Jones Christoffersen Consulting Engineers

Mechanical Engineer:

Hemisphere Engineering

Electrical Engineer:

Beaubien Glover Maskell Engineering

Energy Consultant:

Foraytek Inc.
james.love@shaw.ca

Landscape Architect:

UMA Engineering
(now UMA|AECOM)

Contractor:

Stuart Olson
info@stuartolson.com

École Lawrence Grassi Middle School

GEC Architecture

DRAWINGS


Site Integration



Floor Plans & Section Drawings