OVERVIEW

ENERGY EFFICIENCY

OTHER SUSTAINABILITY FEATURES & MEASURES

DRAWINGS

MORE CASE STUDIES

ABOUT THE 2030 CHALLENGE

 
   
 

Building Type:
Office

Owner:
Manitoba Hydro

Location:
360 Portage Avenue, Winnipeg, Manitoba

Budget: $278,000,000
(total project cost)
65,000m² (700,000 ft²)

Completion:
September 2009

PROJECT TEAM

Design Architect:

Kuwabara Payne McKenna Blumberg Architects

Associate Architect:

Smith Carter Architects and Engineers

Advocate Architect:

Prairie Architects

Energy/Climate Engineers:

Transsolar Energietechnik

General Contractor:

J.D. Strachan Construction Ltd

Landscape Architect:

Hilderman Thomas Frank Cram

Phillips Farevaag Smallenberg

Civil Engineer:

MTE

Mechanical/Electrical Engineer:

AECOM (formerly Earth Tech)

Structural Engineer:

Crosier Kilgour & Partners Ltd.

Halcrow Yolles

Interior Design - Base Building/Public Space:

KPMB Architects

Interior Design - Office:

IBI Group

Number Ten Architectural Group

Environmental Space Planning

Commissioning Agent:

Enermodal

Owner/Developer:

Manitoba Hydro

Building Envelope Consultant:

Brook Van Dalen & Associate

Lighting Design:

Pivotal Lighting Design

Microclimate:

RWDI Inc

Geothermal:

Groundsolar Energy Technologies

Omicron Consulting Group

Life Safety:

Leber | Rubes

Vertical Transportation:

Soberman Engineering

Acoustics:

Aercoustics Engineering Ltd.

Quantity Surveyor:

Hanscomb

Municipal & Site Services:

Wardrop Engineering

Traffic/Access/Parking Engineer:

ND Lea Engineers & Planners

Geotechnical Engineer/
Hydrogeologist:

UMA Engineering

Geotechnical Engineer:

Dyregrov consultants

Water Feature Consultant:

Dan Euser Water Architecture

Manitoba Hydro Place

Kuwabara Payne McKenna Blumberg Architects
Smith Carter Architects and Engineers
Prairie Architects

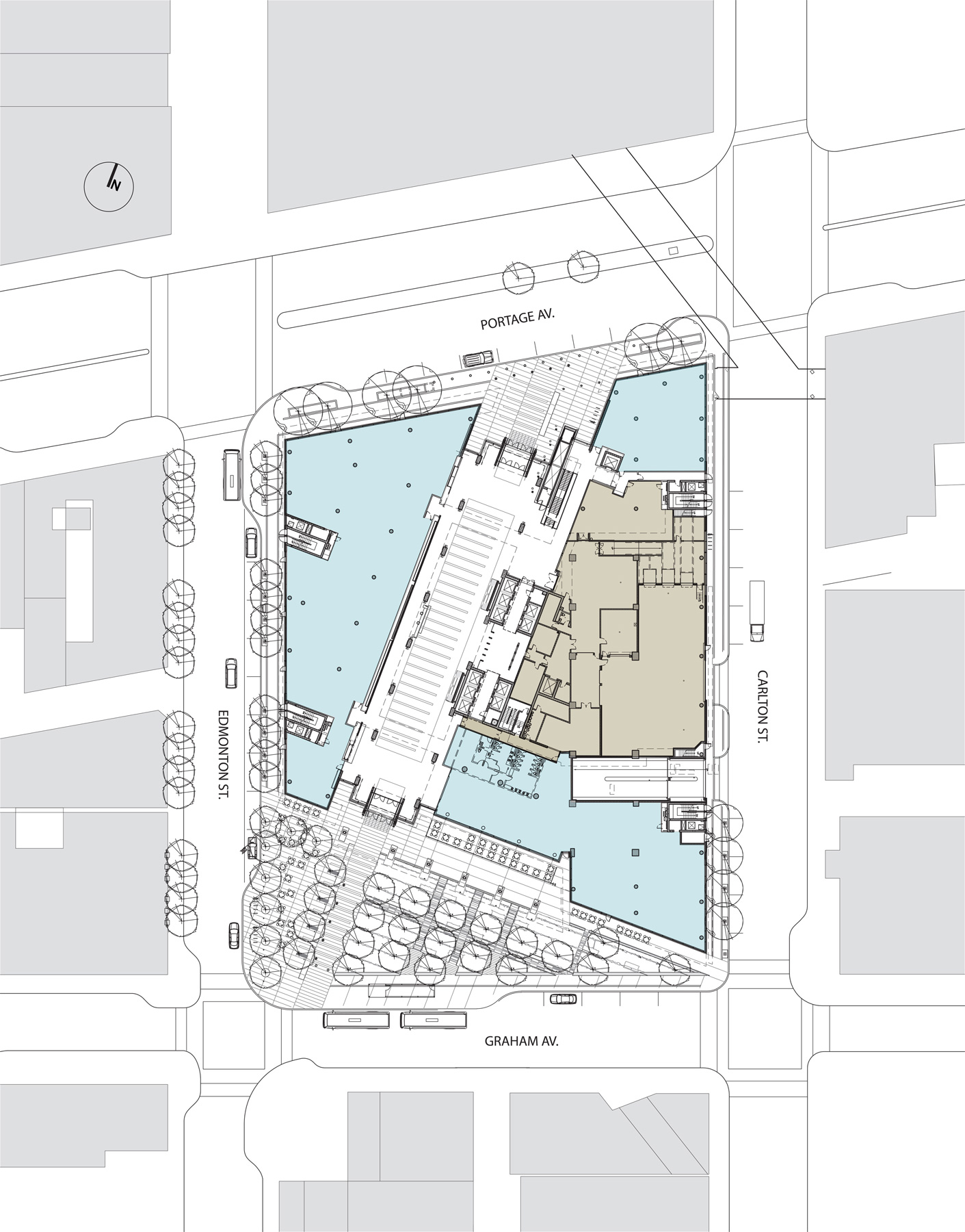
DRAWINGS


Site Integration



Floor Plans & Section Drawings



Energy System Strategies