OVERVIEW

ENERGY EFFICIENCY

OTHER SUSTAINABILITY FEATURES & MEASURES

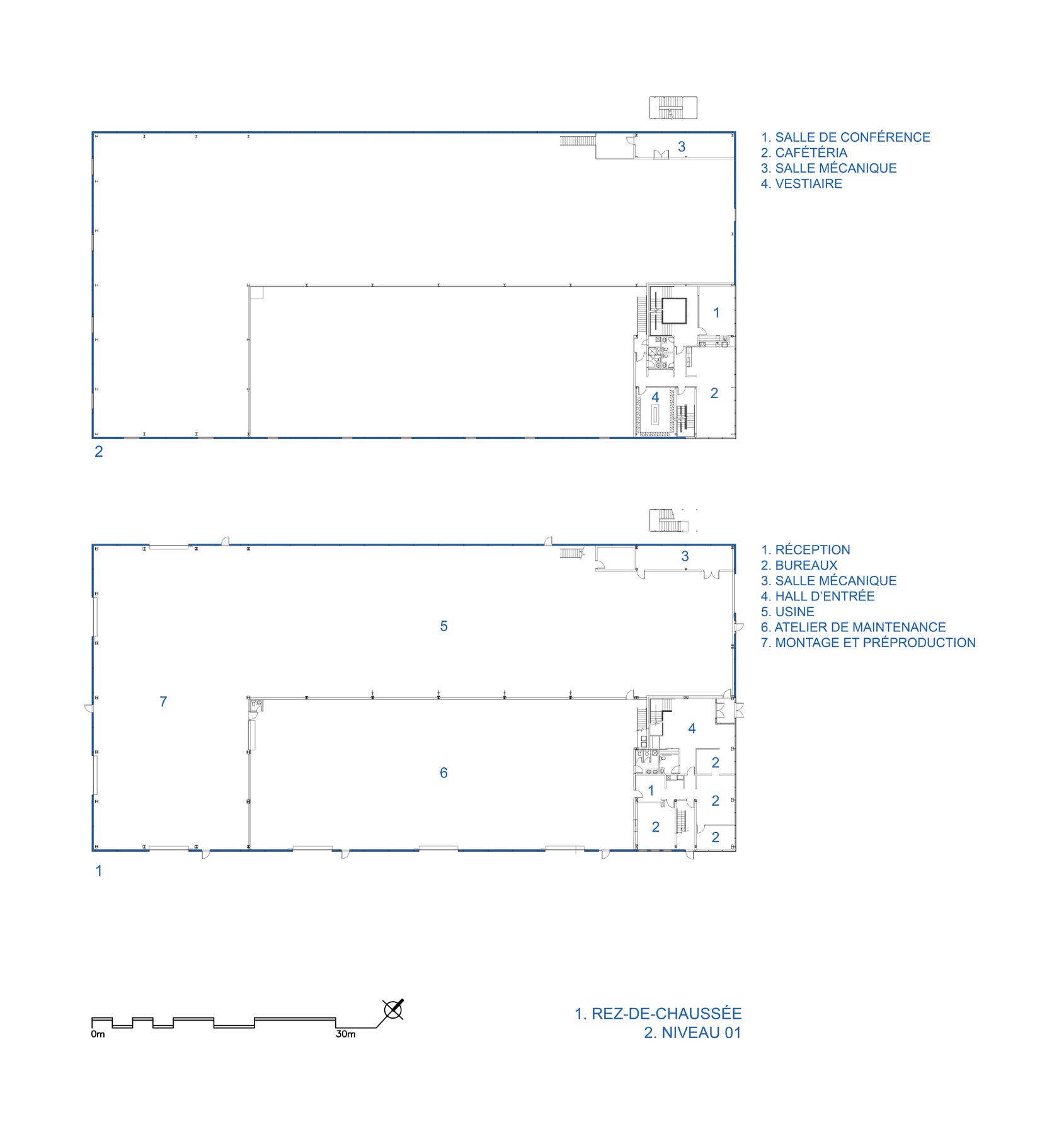
DRAWINGS

MORE CASE STUDIES

ABOUT THE 2030 CHALLENGE

 
   
 

Building Type:
Industrial

Owner:
The Stageline Group

Location:
L'Assomption, Quebec

Budget: $5,100,000

Completion: January 2009

PROJECT TEAM

Architect:

Allard, Hamelin Lalonde, Consortium d'architectes:

Claude Hamelin Lalonde
Luc M. Allard
Jean-François Charbonneau
Pierre Durand
Christian Masse

LEED Accredited Professional:

Luc M. Allard, Architecte:

Jean-François Charbonneau

Structure:

Murox, a division of Canam:

Martin Couture

Mechanical - Electrical:

MuroxEnergy, a division of Canam:

Dany Baillargeon
Jean-Philippe Monfet
Michel Pettigrew

 
Breton, Banville et Associés S.E.N.C.:

Christophe Desage
Louis-François Gagnon
Marie-Josée Audet

Civil Engineering:

Aubé, Gareau Ingénieurs Conseils:

Jean-Marie Audet

Lighting Consultant:

NRG Management Inc.:

Allain Durette

The Stageline Group Building

Allard, Hamelin Lalonde, Consortium d'architectes

DRAWINGS


Site Integration



Floor Plans & Section Drawings